Auftraggebende
Viva terra in Abstimmung mit dem Amt Boostedt-Rickling und der Gemeinde Boostedt
Geltungsbereich
ca. 90 ha
Verfahren
seit August 2025
Werkblatt
Solar-/Photovoltaik-Freiflächenkonzept der Gemeinde: Potenzialflächen nach Kriterienbewertung
Geltungsbereich
14. Änderung des Flächennutzungsplans (Vorentwurf), Planzeichnung
Ausschnitt Modulplan zum Bebauungsplan Nr. 52, Teilbereich I
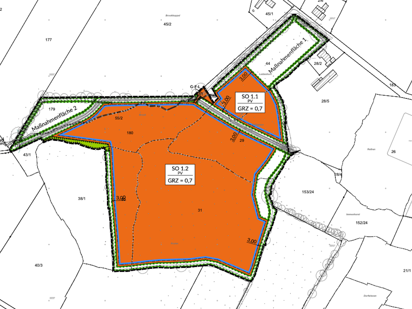
Bebauungsplan Nr. 52, Teilbereich I (Vorentwurf), Planzeichnung
Bebauungsplan Nr. 52, Teilbereich I und III (Vorentwurf), Planzeichnung
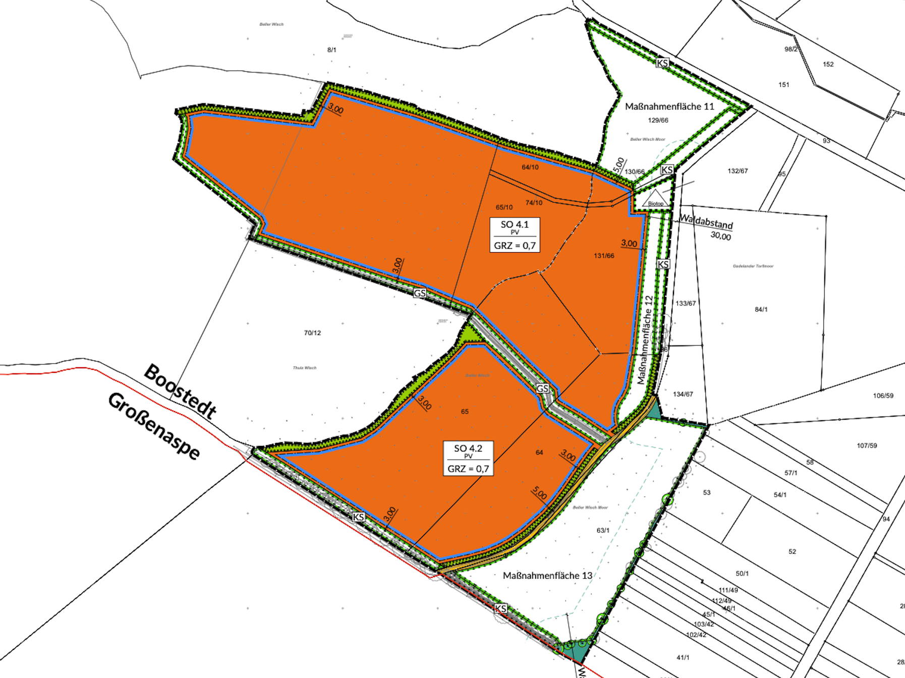
Bebauungsplan Nr. 52, Teilbereich IV (Vorentwurf), Planzeichnung
Auftraggebende
Viva terra in Abstimmung mit dem Amt Boostedt-Rickling und der Gemeinde Boostedt
Geltungsbereich
ca. 90 ha
Verfahren
seit August 2025