Integriertes Stadtentwicklungskonzept (ISEK) Stadt Wahlstedt: Räumliches Leitbild > zum Projekt

Neubau von 8 Wohneinheiten, Heiligenhafen > zum Projekt

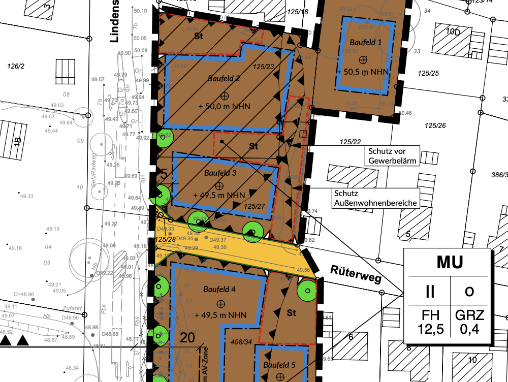
Skizzen

Gesamträumliches Standortkonzept Windenergie: Harte und weiche Tabuzonen > zum Projekt

Wallmuseum Oldenburg in Holstein > zum Projekt

Vorbereitende Untersuchungen (VU) und integriertes städtebauliches Entwicklungskonzept (IEK) "Bahnhofsvorplatz / Lübecker Straße", Stadt Plön: Maßnahmenplan > zum Projekt

Kleiner Michel, Hamburg > zum Projekt

Solar / Photovoltaik Freiflächenkonzept Bargteheide > zum Projekt

Kittners Autoarcaden > zum Projekt

Flächennutzungsplan Gemeinde Tremsbüttel

Städtebaulicher Ideenwettbewerb - Schwentinemündung, Kiel

Vorbereitende Untersuchungen (VU) und integriertes städtebauliches Entwicklungskonzept (IEK) Innenstadt Kaltenkirchen: Zielkonzept > zum Projekt

Neubau Produktionshalle und Reinraum LOGICA

Städtebaulicher Rahmenplan für die Ortmitte Glinde > zum Projekt

Ortsbildanalyse, Hanse- und Universitätsstadt Rostock

für das Gebiet nördlich der historischen Innenstadt und Kröpeliner-Tor-Vorstadt

zum Projekt

Wohnprojekt "Am Burgtor"

Ein Wohnprojekt für alle Bürger, die sich in der zweiten Lebensphase befinden.

zum Projekt

Kleiner Michel, Hamburg

zum Projekt

Samtgemeinde Hollenstedt: 27. Änderung des Flächennutzungsplanes

mit gesamträumlichem Standortkonzept Windenergie

zum Projekt

Aktuelles

Abschluss Gestaltungswettbewerb der liturgischen Mitte der Kathedrale St. Marien zu Lübeck
Bildquelle: Ev.-Luth. Kirchenkreis Lübeck-Lauenburg

> mehr lesen

Konzeptwerkstatt zum Ortskernentwicklungskonzept Tremsbüttel

> mehr lesen

Ergebnisse der Onlinebeteiligung zum Ortskernentwicklungskonzept Tremsbüttel

> mehr lesen